





Overview
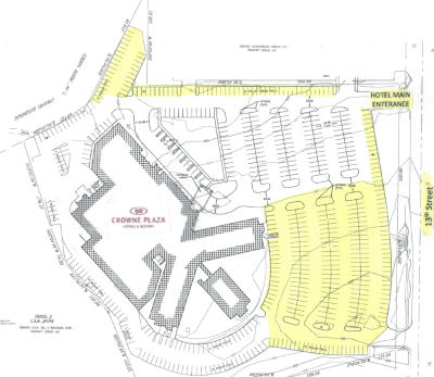
Located minutes away from Milwaukee-Mitchell International Airport. Free shuttle service to and from airport included with online purchase. No extra charges for full-size vans, pick-up trucks and large SUV's. No room reservation required.Please refer to the image on the map on the proper place to park your car. You are welcome to unload at the main entrance and then relocate your vehicle.
Shuttle Service
4:00 AM - 11:00 PM: Shuttle runs on demand. 11:00 PM - 4:00 AM: No shuttle.
Be sure to have a copy of your reservation to present to front desk upon arrival, You must check in at the front desk before parking your car - a waiver is required to park your car with us. The form will require details about your car, license plate and contact information.Crowne Plaza shuttles runs from 4AM to 11PM on demand (For pick-up please call 414-764-5300)Our shuttle is on a first come, first served basis. Airline crew-members get priority on shuttles.Your reservation provides you a spot on our next available shuttle keeping in mind that this could be immediately or a wait. We suggest arriving at least 20-30 minutes earlier than you would like to leave.Please refer to the image on the map on the proper place to park your car. You are welcome to unload at the main entrance and then relocate your vehicle.